契約期間:3年/飲食・カフェ・美容室・エステ・整体・マッサージ・塾・事務所・介護・歯科・クリニック(ご相談ください)
| 物件名称 | ピクニックガーデン C |
|---|---|
| 市区名 | 伊勢崎市東本町 |
| 賃料 | 165,000 円 |
| 種別 | 店舗 |
| 間取り | 1ROOM |
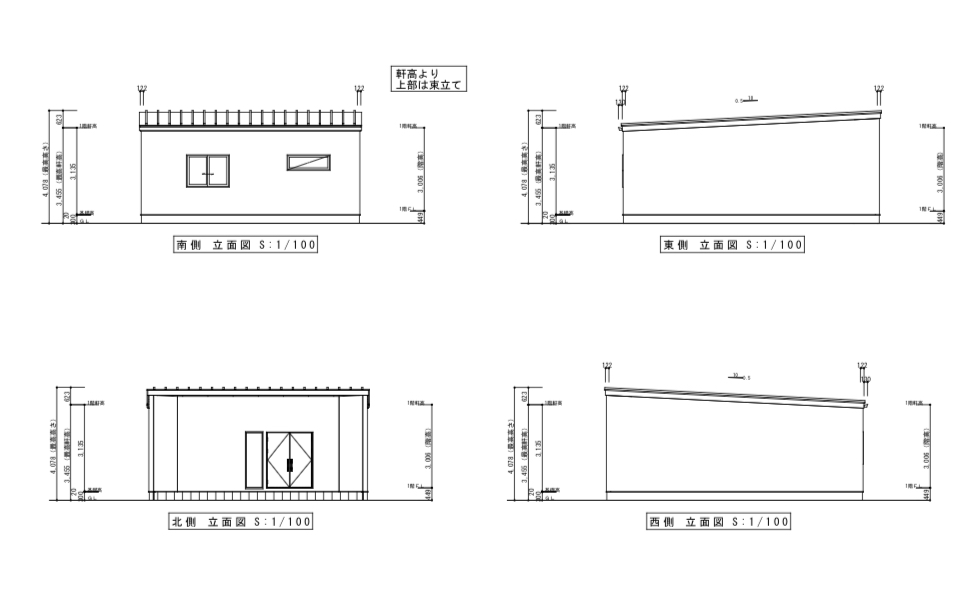
| 面積 | 63.35㎡ |
| 完成年 | 2026年1月完成予定 |
| 構造 | 木造 |
| 入居時期 | 2026年1月下旬完成予定 |
| ペット | 不可 |
| 敷金 | 1ヶ月 |
| 礼金 | 1ヶ月 |
| 火災保険 | 要加入 |
| 共益費 | 5000円 |
| 駐車場 | 各6台(全体31台) 込 |
| 取引形態 | 専任仲介 |
| 設備棟 | C:63.35㎡/天井高:3m(Cのみ)トイレ・ミニキッチンあり/エアコンなし(各自でご用意をお願いします)/下水完備/駐車場各6台 |
この物件をメールでお問い合わせ

